6 Teatree Terrace, Point Cook
- 5
- 2
- 10
Property Details
“East-Facing Grand Family Home – Dual Driveways, Huge Shed, 10-Car Parking & Granny Flat Potential (STCA)”
Nirav Gupta & YPA Point Cook proudly present this exceptional double-storey masterpiece nestled in the highly sought-after Lincoln Heath Estate – and best of all, no body corporate fees!
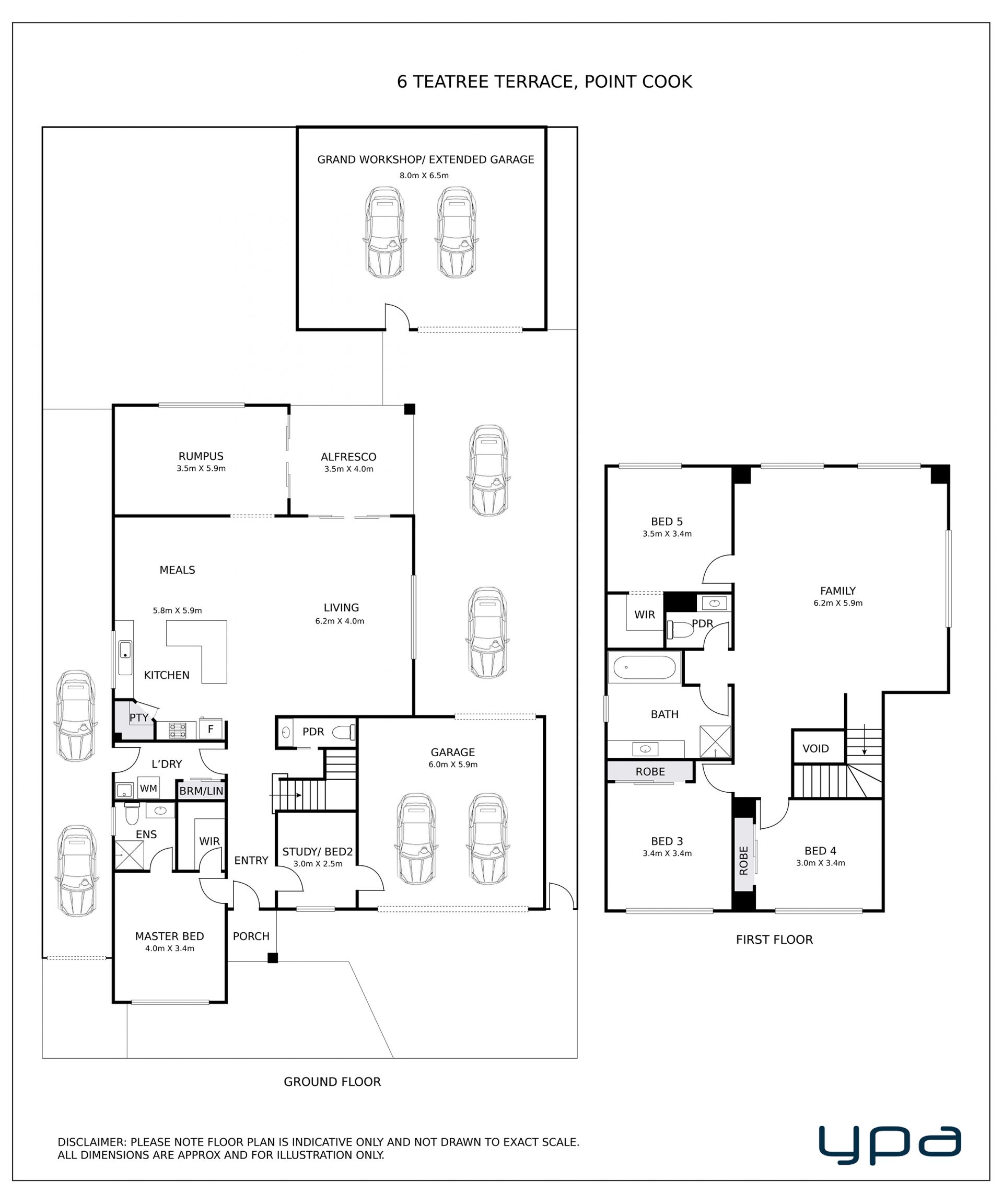
Set on a premium 624m² (approx.) east-facing block with north-facing living areas, this home captures natural light all day long. The striking façade, manicured gardens, and commanding street presence instantly set the tone for a property that perfectly blends space, sophistication, and functionality.
Grand Entrance & Versatile Living
Step inside through the architecturally designed entrance door to be welcomed by soaring high ceilings and abundant natural light that enhance the home's modern elegance. The thoughtful design offers multiple living zones for every member of the family:
✨ Massive formal lounge – ideal for family gatherings or entertaining guests.
✨ Expansive open-plan family and dining area, seamlessly flowing to the outdoor alfresco.
✨ Covered alfresco with sliding doors connecting both the rumpus and living areas – perfect for year-round entertaining.
✨ Dedicated BBQ and outdoor seating area, surrounded by a lush, private backyard for kids and family fun.
Designer Kitchen at the Heart
The central kitchen is both functional and stylish, featuring:
✔ Stainless steel appliances
✔ Expansive benchtops with breakfast bar
✔ Walk-in pantry with additional power points and storage
✔ Abundant cabinetry with a smart, family-friendly layout
Comfortable Family Accommodation
The home offers five spacious bedrooms to suit growing families:
The master suite comes complete with a walk-in robe and a private ensuite with vanities and premium fittings – a true parents' retreat.
Three additional bedrooms upstairs, each with built-in robes, share a central family bathroom with bathtub and quality finishes.
A large upstairs family lounge provides the perfect space for relaxation or study.
The Ultimate Outdoor Advantage – Rare Features You Won't Find Elsewhere
✔ Massive rear shed with built-in two post Car hoist, electric and water connections – ideal for car enthusiasts, trades, or even a future granny flat (STCA).
✔ 10-car parking capacity including dual driveways from both sides of the home.
✔ Drive-through garage with motorised rear door – perfect for boats, caravans, or additional vehicles.
✔ Professionally landscaped gardens with easy-care design.
✔ Quality polished flooring, window furnishings, and high-end fittings throughout.
Prime Location Highlights
Set on a premium 624m² (approx.) east-facing block with north-facing living areas, this home captures natural light all day long. The striking façade, manicured gardens, and commanding street presence instantly set the tone for a property that perfectly blends space, sophistication, and functionality.
Grand Entrance & Versatile Living
Step inside through the architecturally designed entrance door to be welcomed by soaring high ceilings and abundant natural light that enhance the home's modern elegance. The thoughtful design offers multiple living zones for every member of the family:
✨ Massive formal lounge – ideal for family gatherings or entertaining guests.
✨ Expansive open-plan family and dining area, seamlessly flowing to the outdoor alfresco.
✨ Covered alfresco with sliding doors connecting both the rumpus and living areas – perfect for year-round entertaining.
✨ Dedicated BBQ and outdoor seating area, surrounded by a lush, private backyard for kids and family fun.
Designer Kitchen at the Heart
The central kitchen is both functional and stylish, featuring:
✔ Stainless steel appliances
✔ Expansive benchtops with breakfast bar
✔ Walk-in pantry with additional power points and storage
✔ Abundant cabinetry with a smart, family-friendly layout
Comfortable Family Accommodation
The home offers five spacious bedrooms to suit growing families:
The master suite comes complete with a walk-in robe and a private ensuite with vanities and premium fittings – a true parents' retreat.
Three additional bedrooms upstairs, each with built-in robes, share a central family bathroom with bathtub and quality finishes.
A large upstairs family lounge provides the perfect space for relaxation or study.
The Ultimate Outdoor Advantage – Rare Features You Won't Find Elsewhere
✔ Massive rear shed with built-in two post Car hoist, electric and water connections – ideal for car enthusiasts, trades, or even a future granny flat (STCA).
✔ 10-car parking capacity including dual driveways from both sides of the home.
✔ Drive-through garage with motorised rear door – perfect for boats, caravans, or additional vehicles.
✔ Professionally landscaped gardens with easy-care design.
✔ Quality polished flooring, window furnishings, and high-end fittings throughout.
Prime Location Highlights
