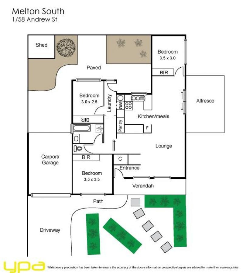
1/58 Andrew Street, MELTON SOUTH
- 3
- 1
- 1
Property Details
3 BEDROOM UNIT
An ideal prospect exists to acquire this well presented 3 bedroom residence in an opportune locality to main roads, trains station and the newly refurbished Woodgrove Shopping Centre! Includes built in robes, ducted cooling, gas heating and cooking, modern kitchen and bathroom, spacious living and secure car accommodation. The special feature here are two separate outdoor areas. One is a private courtyard with garden shed and access from carport. The other is a fully undercover outdoor pergola area, offering outdoor entertaining all year round. It is rarity to find a unit of this type so well set up for comfortable living. Currently tenanted to a reliable tenant for $240 per week, this would be a great property to add to your portfolio. Private inspections are a pleasure, please call exclusive listing agent Evelyn Maliszewski today to arrange, 0422 646 079.
