20 Casuarina Court, MELTON WEST
- 3
- 2
- 2
Property Details
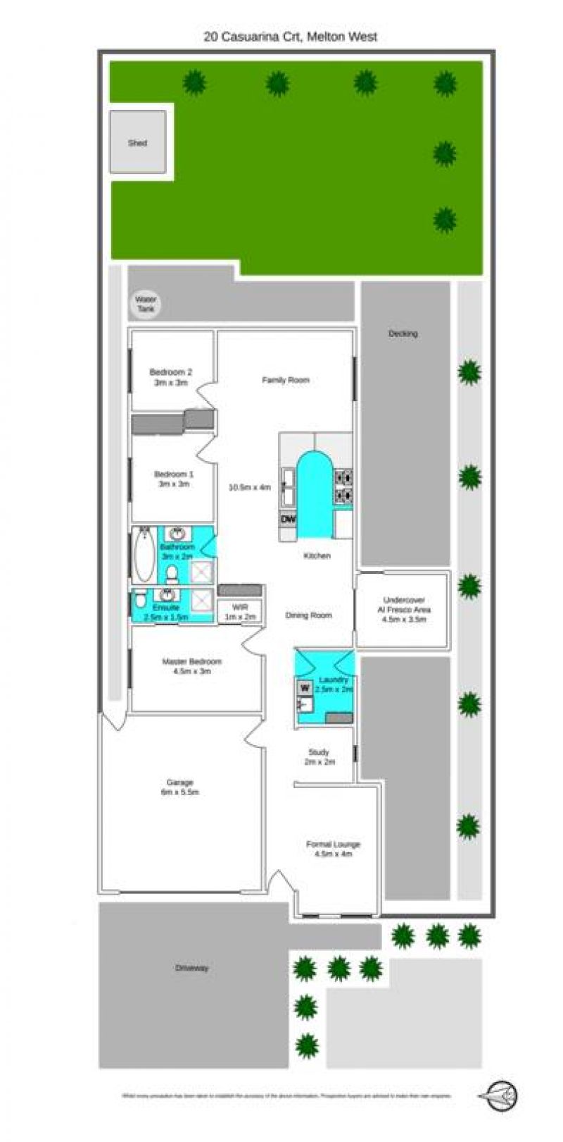
SPACE & STYLE IN A COURT LOCATION
Location provides the perfect context for this stunning 3 bedroom home. Gleaming street appeal and abundant northern light enhance an appealing living area which is accompanied by stunning kitchen with lots of cupboard space. Boasting three bedrooms, each with built-in robes (Master with ensuite), immaculate bathroom and a large living room great for entertaining with a separate formal lounge and study great for a any family. Moving outside just gets better as all the hard work has been completed with a fully enclosed entertaining area and huge backyard for the kids and fully landscaped completing this fine package. Located close to all amenities and walking tracks this home is one certainly not to be missed. Avoid disappointment, as inspections are our pleasure!!
