18 Cheviot Road, CAMPBELLFIELD
- 3
- 1
- 2
Property Details
What a location! What a Lifestyle
Impressively located... in the thriving heart of Campbellfield! This residence is in an exclusive pocket, where homes in this area are rarely offered for sale. You can leave the car at home with popular Campbellfield Plaza only a 2 minute walk away, where all of lifes essential necessities are delivered here including Kmart, Coles, Aldi, Officeworks plus a variety of independent stores with additional retail/dining, recreational/remedial and business precincts also only moments from home providing all other essential amenities.
Prepare to be inspired, the home has been cleverly modernised and will surely exceed your expectations, sitting proudly on a rectangular block of 551m2(approx.) with a range of features and finishes from attractive hardwood floors to the decorative cornices that superbly compliment the appeal of the home.
This is an ideal purchase, for the home buyer, who will enjoy owning their own home to the investor looking to increase their portfolio and financial growth.
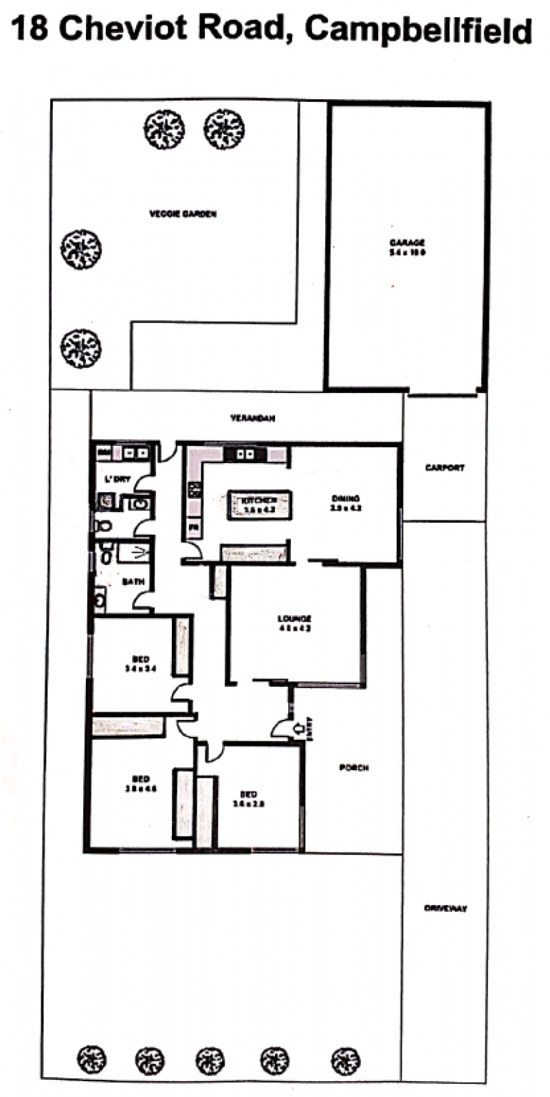
This family-focused home extends to an inviting large front porch, leading to a versatile floorplan that caters for comfortable living.
3 bedroom residence, (all with built in mirrored robes, master with large tailored his/hers robes).
A complementing the formal lounge with welcoming electric fireplace.
A gourmet kitchen featuring stone bench tops with sizeable island bench perfect for meal preparation, unique
double oven and double grill, oversized 1100mm cooktop, desirable subway splashbacks, an abundance of cabinets, fitted with attractive pendant lighting, door handles and a modern sink. Overlooking an expansive meals/dining area.
Additional appointments include ducted heating, evaporative cooling, luxurious fully tiled central bathroom with suspended cabinet and large shower, together with an equally impressive powder room and laundry.
Substantial driveway leading to a single carport, following through to a single remote garage, that an also be used as an additional retreat area with kitchenette that is fully plumbed and powered.
The backyard opens to a lengthy undercover pergola area, the perfect way to relax, overlooking a low maintenance, elevated garden with an array of fruit trees with convenient rear storage shed.
Was previously tenanted with a rent return of $1820 p.c.m
Close proximity to great schools with 1km to Moomba Park Primary, 1.5km to St Mathews Primary and 2km to John Fawkner Secondary.
Bus transport route 531 nearby on Sydney Rd, 2km to Gowrie Train Station with Fawkner Leisure Centre and Fawkner Library at hand.
A thriving neighbourhood with surrounding reserves and further enhanced by walking/bike trails with Merri Creek parkland nearby.
Easy access to Mahoneys Rd, Hume Highway and Ring Rd Freeway.
12km to Melb Airport and 15km to Melbourne CBD.
Prepare to be inspired, the home has been cleverly modernised and will surely exceed your expectations, sitting proudly on a rectangular block of 551m2(approx.) with a range of features and finishes from attractive hardwood floors to the decorative cornices that superbly compliment the appeal of the home.
This is an ideal purchase, for the home buyer, who will enjoy owning their own home to the investor looking to increase their portfolio and financial growth.
This family-focused home extends to an inviting large front porch, leading to a versatile floorplan that caters for comfortable living.
3 bedroom residence, (all with built in mirrored robes, master with large tailored his/hers robes).
A complementing the formal lounge with welcoming electric fireplace.
A gourmet kitchen featuring stone bench tops with sizeable island bench perfect for meal preparation, unique
double oven and double grill, oversized 1100mm cooktop, desirable subway splashbacks, an abundance of cabinets, fitted with attractive pendant lighting, door handles and a modern sink. Overlooking an expansive meals/dining area.
Additional appointments include ducted heating, evaporative cooling, luxurious fully tiled central bathroom with suspended cabinet and large shower, together with an equally impressive powder room and laundry.
Substantial driveway leading to a single carport, following through to a single remote garage, that an also be used as an additional retreat area with kitchenette that is fully plumbed and powered.
The backyard opens to a lengthy undercover pergola area, the perfect way to relax, overlooking a low maintenance, elevated garden with an array of fruit trees with convenient rear storage shed.
Was previously tenanted with a rent return of $1820 p.c.m
Close proximity to great schools with 1km to Moomba Park Primary, 1.5km to St Mathews Primary and 2km to John Fawkner Secondary.
Bus transport route 531 nearby on Sydney Rd, 2km to Gowrie Train Station with Fawkner Leisure Centre and Fawkner Library at hand.
A thriving neighbourhood with surrounding reserves and further enhanced by walking/bike trails with Merri Creek parkland nearby.
Easy access to Mahoneys Rd, Hume Highway and Ring Rd Freeway.
12km to Melb Airport and 15km to Melbourne CBD.
